Viareggio 0584 44148
Torre del Lago 0584 1660501
Agenzia Immobiliare Pasquali a Viareggio e Torre del Lago

Rif. 1M1502 - Appartamento mansardato con cantina e giardino

Descrizione

A Viareggio (LU) - Quart. Città Giardino - a 300 metri dal mare e vicino alla Pineta, in contesto residenziale.

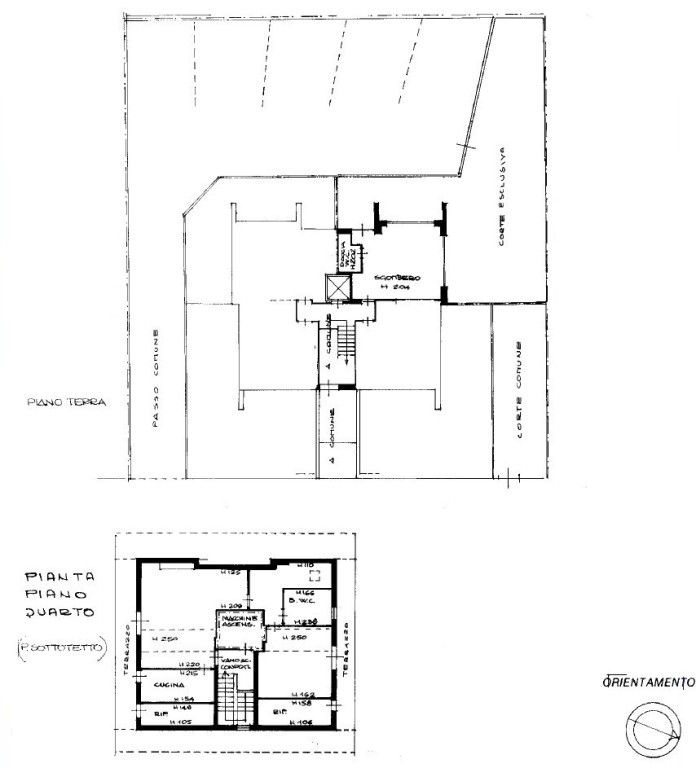
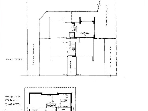
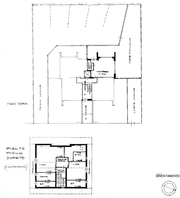
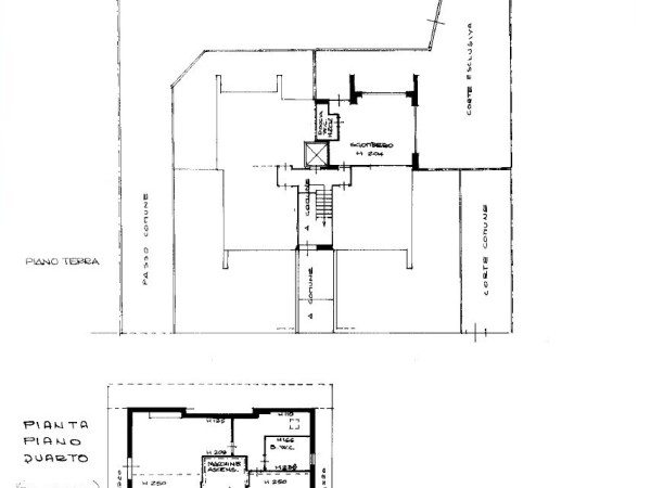
Proponiamo in Vendita - nostra Esclusiva - un bell'appartamento mansardato posto al Piano Quarto, con ascensore, oltre che da grande cantina al Piano Terra con giardino esclusivo.

Si compone di ingresso, soggiorno con terrazzino, cucina, camera grande con balcone e bagno, oltre che da ripostiglio sottotetto.

La cantina ha h 2.10 ed è composta da un unico vano di circa 20 mq e da bagno con doccia.

A corredo troviamo un giardino privato con accesso carrabile.

Il condominio e l'appartamento sono molto ben tenuti e curati, l'appartamento è subito libero e disponibile!


Si precisa che gli indirizzi presenti negli annunci non sono quelli reali degli immobili, ma indicano la zona in cui sono inseriti, questo al fine di tutelare privacy e riservatezza dei venditori.

Prezzo

€ 295.000

Caratteristiche

Tipologia:

Appartamento

Contratto:

Vendita

Località:

Viareggio

Superficie (mq):

70

Numero Vani:

3

Numero Camere:

1

Numero Bagni:

1

Cucina:

Cucinotto

Riscaldamento:

Autonomo

Giardino:

Privato

Ascensore:

Si

Condizioni:

Buono

Cl. Energetica:

F

EPgl,nren:

138.42 kWh/m² annui

Galleria fotografica

Contattaci ora, gratis e senza impegno

* Nome e Cognome:

* E-mail:

Telefono:

Oggetto:

Messaggio:
Controllo Antispam*: Qual è il numero tra 5 e 7?

Acconsento al trattamento dei dati personali

Altri Immobili che potrebbero interessarti

Appartamento di Nuova Costruzione a Città Giardino

A viareggio (lu) - quart. Città giardino - in zona di pregio, vicino al mare. Proponiamo in vendita un bellissimo appartamento dup. . .

RIFERIMENTO: 1M1501
PREZZO: 1.280.000€
SUPERFICIE: 220m²
 
Dettagli

Appartamento Semi Indipendente al Piano Terra

A torre del lago puccini - fraz. Viareggio (lu) - in zona residenziale, vicino al lago di massaciuccoli. Proponiamo in vendita un b. . .

RIFERIMENTO: 2L1543
PREZZO: 210.000€
SUPERFICIE: 75m²
 
Dettagli

Appartamento al Primo Piano in centro a Viareggio

A viareggio (lu) - in centro. A due passi dal mare, dalla pineta e dalla celebre "passeggiata". Proponiamo in vendita un appartamen. . .

RIFERIMENTO: 1A1231
PREZZO: 280.000€
SUPERFICIE: 90m²
 
Dettagli

Appartamento al Piano Terra a Torre del Lago

A torre del lago puccini - fraz. Viareggio (lu) - in zona centrale. Proponiamo in vendita - nostra esclusiva - un bell'appartamento. . .

RIFERIMENTO: 2F1545
PREZZO: 195.000€
SUPERFICIE: 75m²
 
Dettagli