Viareggio 0584 44148
Torre del Lago 0584 1660501
Agenzia Immobiliare Pasquali a Viareggio e Torre del Lago

Rif. 1N1501 - Appartamento con grande terrazza

Descrizione

A Viareggio (LU) - quart. Don Bosco - vicino alla Pineta, in ottima zona.

Proponiamo in vendita un appartamento posto al Primo Piano di piccola palazzina di sole 4 unità.

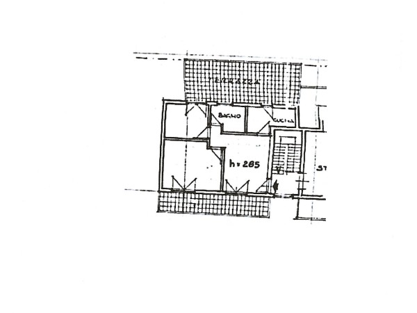
Si compone di ingresso, soggiorno con balcone, cucinotto con accesso a una bella terrazza, camera matrimoniale, cameretta e bagno con vasca.

Molto ben tenuto!
A corredo dell'appartamento abbiamo un'area posti bici condominiale e una cantina al piano seminterrato.


Si precisa che gli indirizzi presenti negli annunci non sono quelli reali degli immobili, ma indicano la zona in cui sono inseriti, questo al fine di tutelare privacy e riservatezza dei venditori

Prezzo

€ 295.000

Caratteristiche

Tipologia:

Appartamento

Contratto:

Vendita

Località:

Viareggio

Superficie (mq):

70

Numero Vani:

4

Numero Camere:

2

Numero Bagni:

1

Cucina:

Cucinotto

Riscaldamento:

Autonomo

Garage:

No

Giardino:

No

Condizionatore:

Si

Condizioni:

Buono

Cl. Energetica:

G

EPgl,nren:

300 kWh/m² annui

Galleria fotografica

Contattaci ora, gratis e senza impegno

* Nome e Cognome:

* E-mail:

Telefono:

Oggetto:

Messaggio:
Controllo Antispam*: Qual è il numero tra 9 e 11?

Acconsento al trattamento dei dati personali

Altri Immobili che potrebbero interessarti

Appartamento Ristrutturato a Torre del Lago

A torre del lago puccini - fraz. Viareggio (lu) - in zona centrale, vicino a tutti i servizi. Proponiamo in vendita un bellissimo a. . .

RIFERIMENTO: 2L1542
PREZZO: 190.000€
SUPERFICIE: 85m²
 
Dettagli

Monolocale Seminterrato a Torre del Lago

A torre del lago puccini - fraz. Viareggio (lu) - zona centrale, tra la via aurelia e la ferrovia. Proponiamo in vendita un apparta. . .

RIFERIMENTO: 2F1550
PREZZO: 85.000€
SUPERFICIE: 30m²
 
Dettagli

Mansarda a Torre del Lago zona Mare

A torre del lago puccini, vicino al mare, in ottima posizione e cooredato da un ampio parcheggio; monolocale uso abitazione mansar. . .

RIFERIMENTO: 2M1112
PREZZO: 90.000€
SUPERFICIE: 40m²
 
Dettagli

Appartamento di Nuova Costruzione a Città Giardino

A viareggio (lu) - quart. Città giardino - in zona di pregio, vicino al mare. Proponiamo in vendita un bellissimo appartamento dup. . .

RIFERIMENTO: 1M1501
PREZZO: 1.280.000€
SUPERFICIE: 220m²
 
Dettagli