Viareggio 0584 44148
Torre del Lago 0584 1660501
Agenzia Immobiliare Pasquali a Viareggio e Torre del Lago

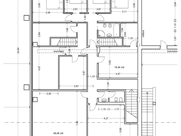
Rif. 4C2500 - Fabbricato polivalente uso abitazione, uffici e artigianale

Descrizione

A Viareggio (LU) - in posizione strategica a pochissima distanza dall’ingresso autostradale, e limitrofo a tutti i Comuni della Versilia.


Fabbricato polivalente  di nuova costruzione di 500 mq su due piani + 250 mq terreno fronte/retro, composto da due appartamenti uso abitazione, due uffici, due grandi stanze al piano terra uso commerciale.

L'immobile è così suddiviso:

- Il primo appartamento è di 80 mq su due piani con ingresso indipendente e ha 2 camere, bagno con idromassaggio e ampio soggiorno/cucina al piano terra con accesso al giardino sul retro, le stanze sono corredate da ampie finestre con vista libera sulle montagne, ampio terrazzo coperto da cui si accede al tetto (250 mq praticabile).

- Il secondo appartamento è di 110 mq su due piani, ed è composto da 4 camere, ampio bagno con idromassaggio diviso in due ambienti con accesso separato, ampio soggiorno/cucina al piano terra con accesso al giardino sul retro, le stanze sono corredate da ampie finestre con vista libera sulle montagne ampio terrazzo coperto da cui si accede al tetto.

- il primo ufficio è costituito da un unico grande vano di mq 45 con ingresso indipendente e WC (antibagno/bagno con doccia)

- il secondo ufficio è costituito da un unico grande vano mq 35 con ingresso indipendente e WC (antibagno/bagno con doccia)

- al piano terra due vani per complessivi 180 mq, entrambi con ingresso indipendente lato strada (portone in alluminio e vetro completamente apribile di 2,50 x 4 metri per il primo vano e portone in alluminio e vetro completamente apribile di 2,50 x 3 metri per il secondo vano) con lavori da ultimare.

Sul fronte è corredato da resede di mq.70 con cancello pedonabile e carrabile, mentre sul retro da giardino di mq.180.


Sia gli appartamenti che gli uffici sono realizzati con impianti e rifiniture di ottima qualità:

l'intera struttura è isolata acusticamente (predisposto per studio di registrazione) e con ottimo isolamento termico, aria condizionata in tutti gli ambienti ventilazione meccanica dell’aria e riscaldamento a pavimento in tutti gli ambienti negli appartamenti ed uffici.

Ideale anche per l’appoggio come produzione o uffici per la Nautica vista la vicinanza ai principali cantieri navali. 

In corso di ultimazione dei lavori.

Prezzo

€ 580.000

Caratteristiche

Tipologia:

Stabile - Palazzo

Contratto:

Vendita

Località:

Camaiore - Le Bocchette

Superficie (mq):

500

Terreno (mq):

250

Numero Vani:

10

Numero Camere:

7

Numero Bagni:

4

Cucina:

Abitabile

Riscaldamento:

Autonomo

Garage:

PostoAuto

Giardino:

Privato

Condizionatore:

Si

Condizioni:

Nuovo

Cl. Energetica:

in-fase-rilascio

Galleria fotografica

Contattaci ora, gratis e senza impegno

* Nome e Cognome:

* E-mail:

Telefono:

Oggetto:

Messaggio:
Controllo Antispam*: Qual è il numero tra 5 e 7?

Acconsento al trattamento dei dati personali